Singapore  Singapore

Post Ad
Listing Id: 33912 Last Refreshed: 06/01/2025 Total Views: 880 Broker Ref: 22433.1

Huntington Tavern, 30 year lease Offers Over$99,500+sav

TasmaniaHotels
Asking Price: $99,500
Business For Takeover
Look For Investor
Look For Partner
Paul Scott Business Brokers Network Australia
Email Broker

Overview

  • Premise Type N/A
  • Premise Size N/A
  • Monthly Rental N/A
  • Rental Desposit N/A
  • Revenue N/A
  • Liability N/A
  • Gross Profit N/A
  • Net Profit N/A
  • Stock N/A
  • FFE N/A
  • Payable N/A
  • Receivable N/A
  • Owner Role N/A
  • Staff N/A
  • Established N/A
  • Source Broker

Reason For Sale

NA

Description

Modern well maintained, easily managed tavern, in excellent condition, in growth area. Attractive design with recycled brick cladding, colonial pane windows, veranda on two sides, complimented by a large carpark.

Sale includes all plant and equipment, An established business which has been operating under management.

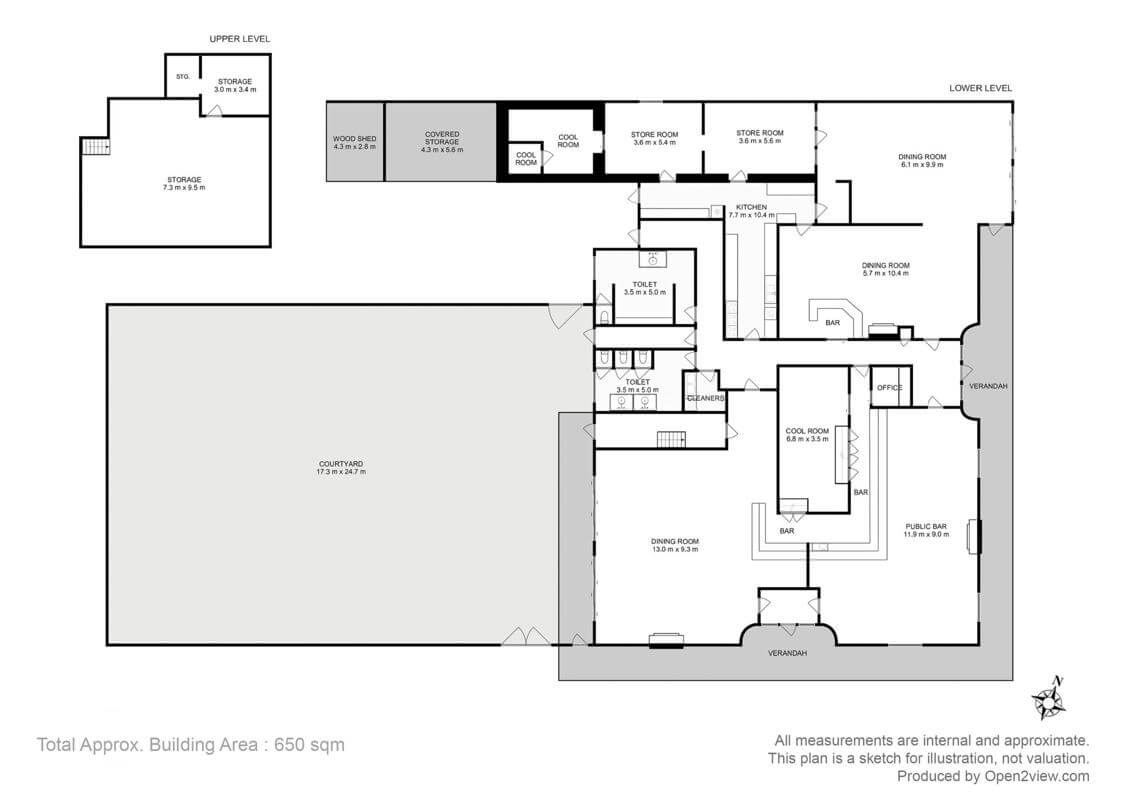
The tavern features a public bar, dinning room, spacious function room, commercial kitchen, large entertainment courtyard, office, upstairs yet to be finished managers quarters, two walk in cool rooms and freezer. the building size is approximately 650 m2, the entertainment courtyard measures approximately 420m2 and can accommodate 400 patrons.

There was a hotel on this 2560m2 site back in 1862, current hotel was built in 1988.

This represents a low ingoing opportunity for an experienced operator or a novice to cut their teeth on, very reasonable rent and with upside to rejuvenate the trade and enjoy a healthy net profit.

Includes three wood heaters, Keno and UBET, POS system, surveillance system.

Freehold going concern or investment sale considered.

Priced to sell, with favourable lease terms and rent.

To arrange an inspection-Contact Paul Scott on 0477 771 098 email: pauls@businessbrokersnetwork.com.au or contact Praveen Pant on 0432 256 682 INTENDING PURCHASERS TO MAKE THEIR OWN INVESTIGATIONS AND ENQUIRIES IN RELATION TO THE BUSINESS AND NOT TO RELY UPON WARRANTY OR STATEMENT MADE BY THE VENDOR OR BY ANYONE ON HIS/HER BEHALF. NOTE: All figures are approximate
Send Enquiry
Please send enquiry in English
Your Name*
Mobile Number*
Email*
Message
All listings, including descriptions, data, and images, are provided by the seller or their representatives. We do not verify the accuracy, completeness, or authenticity of any information and offer no guarantees or warranties. Any disputes, claims, or decisions arising from the information provided in listings are solely between buyers and sellers. Learn how to avoid scam.
/

Just a moment... we are processing the request